Social housing
It’s vital to WBG to give back, we are community focussed, and proud of our social housing development, which will provide 52 families warm healthy homes.
This development will provide safe and healthy houses with wrap-around services for those in need. The development will also significantly boost housing availability in Levin, a timely response to the Horowhenua’s rapid population growth.
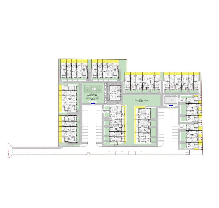
The site will house ten individual blocks, each containing five or six one or two storey units; together with a communal hall, outdoor areas, children’s playground, community garden, orchard and 46 parking spaces including accessible parks.
The Salvation Army will staff the community centre (with one full-time tenancy manager and one part-time support person). Those staff will provide access to wrap-around support services for residents in the development, including connecting residents with social support services and offering assistance with budgeting, food, health and whanau support.




